Ga direct naar de hoofdinhoud
Le Chasseur
Home
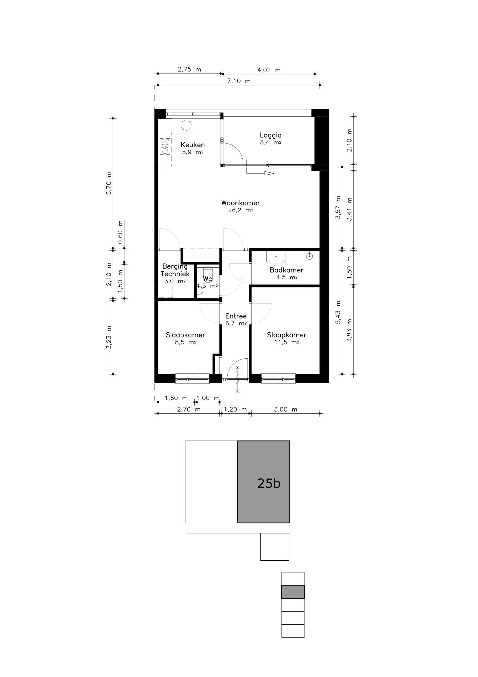
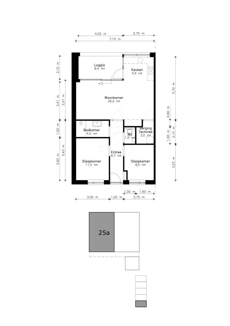
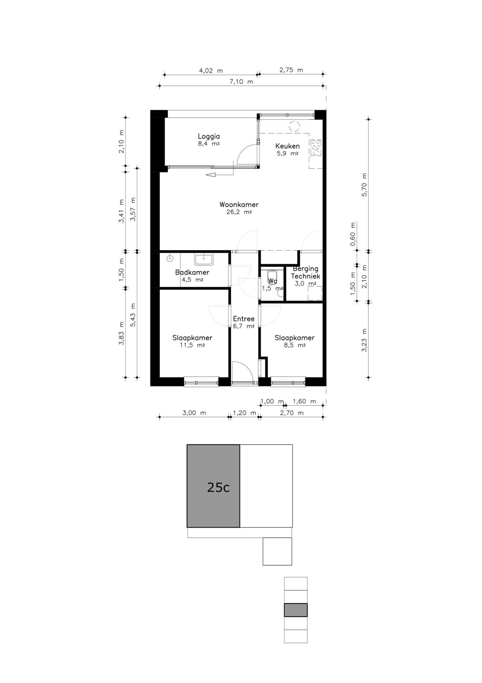
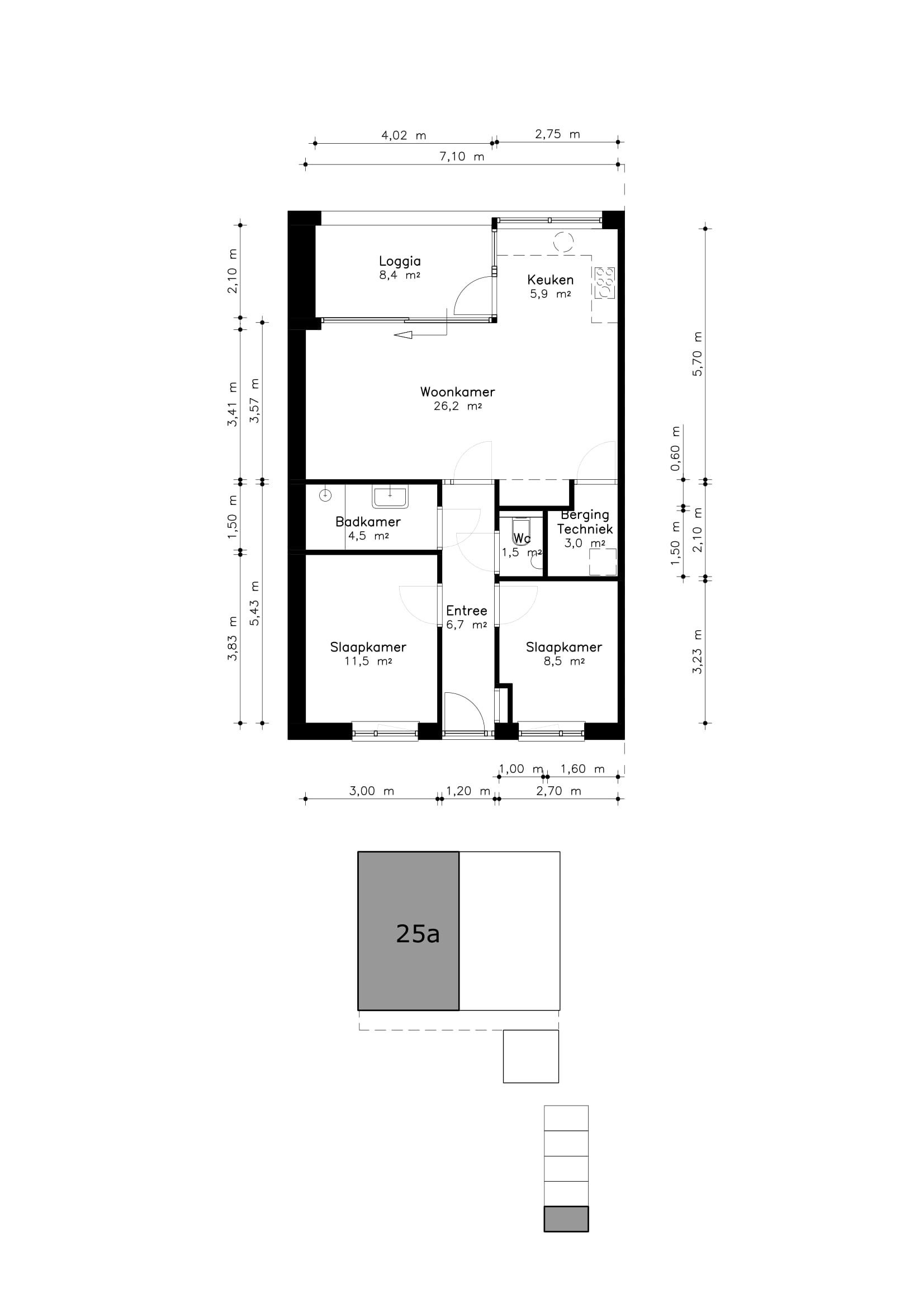
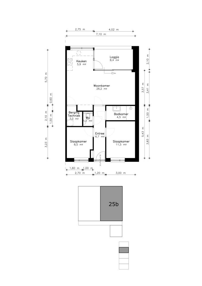
Plattegronden
Schetsen
Ligging en buurt
Over Le Chasseur
Contact
Plattegronden